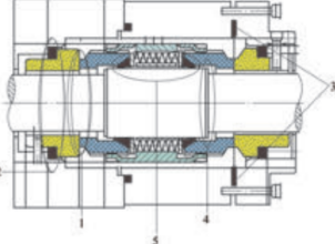
一套完整的机封由动密封和静密封两种形式的密封组合而成,缺一不可,离心式渣浆泵中常用的是集装式双端面机封,双端面的机封共有5个密封点(见下图),其中动密封是依靠两个密封端面的紧密接触保持旋转时的密封,静密封则主要依靠机封的橡胶密封圈保持动环在轻微窜动下与轴套之间的密封。

1—动静环摩擦副密封端面 2—静环密封圈 3—压盖密封处
4—轴套与轴之间的密封 5—轴套与动环密封圈
离心式渣浆泵机封的泄漏基本是以下3个密封出现了问题。
(1)机封的橡胶密封圈
离心式渣浆泵输送的介质温度较高,这会导致介质的高温传递使机封长期处于高温状态,尤其在泵运行后,机封的密封端面高速旋转摩擦发热会造成橡胶密封圈的老化或变形。为了降低机封的运行温度,渣浆泵运行时需要给机封通入机封冷却水,用于机封的降温。但机封冷却水的硬度、水中含有的杂质也会逐渐造成橡胶密封圈的损坏或降低其密封效果。
(2)机封动环压缩弹簧
压缩弹簧负责为动环提供弹性补偿,由于冷却水的存在,机封经过一定的使用周期后会产生大量的结垢,这会影响到压缩弹簧的性能,导致机封动静环密封端面无法紧密贴合,使机封的密封端面之间产生间隙而发生泄漏。
(3)机封端面损坏
机封的端面一般采用非常耐磨的硬质合金或者碳化硅等材质,而且目前常用的集装式机封的结构也极大限度地降低了端面受到撞击的影响因素,所以在正常的使用情况下,机封的端面是难以产生由于端面的外力撞击断裂损坏的。

要诊断机封泄漏原因,找出泄漏的部位,可以根据机封组装后的静止试漏和机封旋转后的泄漏情况进行分析判断。如果机封安装后静止状态,通入一定压力的冷却水就存在泄漏且泄漏量较小,则问题一般是由于机封的动环和静环处的密封圈而引起;如果通入冷却水后,机封的泄漏量较大则说明动环和静环之间的端面密封出现了问题,一般是因为两个端面无法充分贴合造成,这种故障需要对机封进行拆解重新的安装;如果在机封初期并无泄漏,但工作一段时间后产生泄漏,一般是机封的压缩弹簧失效或机封的动环损坏造成。除此之外,还可以根据渣浆泵的运行状态、设备的振动值、转速、冷却水的水质和机封的运行时间等数据判断机封的故障原因并制定相应的维修方案。



 扫一扫
扫一扫 
    	 
             首页
首页 电话
电话 产品
产品